TRILUX GmbH & Co. KG
TRILUX ONE ist Ihre persönliche E-Business-Plattform. Sie bündelt alle wichtigen Informationen und unterstützt Sie bei allen Prozessen rund um Ihre neue Beleuchtung.
| Name | Beschreibung | Gewicht | |
|---|---|---|---|
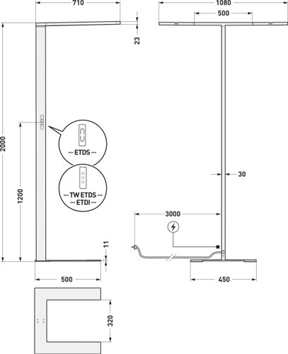
Luceos S-U LL WP Swarmmodul DK 05 6000890500 | Nachrüstbares Kommunikationsmodul zur Vernetzung und Kommunikation mit Nachbarleuchten, welche ebenfalls über ein Kommunikationsmodul verfügen. Definition der Leuchtengruppen über zwei Drehcodierschalter auf der Unterseite des Moduls. Durch die Bewegungserkennung und Tageslichtregelung des Leuchtensensors können sich die vernetzten Leuchten gegenseitig an-/ausschalten oder dimmen. Montage mittels Montageblech auf dem Leuchtenkopf. Farbe des Montageblechs schwarz (ähnlich RAL 9005). Nur kompatibel mit Leuchten Luceos S G3 ETDS... . | 0,075 kg | Zur Merkliste hinzufügenZum Produktvergleich hinzufügenDownloads |